Проекты и решенияВнедренные проектыШкаф пожарной автоматики АСПТ, ПС, ОС, СОУЭ мобильной компрессорной установки
Рекомендации по построению систем пожарной автоматики в соответствии с СП 484.1311500.2020 изм.1
Автоматизация проектирования BolidCAD
Оборудование Болид в Едином реестре российской радиоэлектронной продукции
Приглашаем принять участие в опросе

Шкаф пожарной автоматики АСПТ, ПС, ОС, СОУЭ мобильной компрессорной установки

Шкаф пожарной автоматики АСПТ, ПС, ОС, СОУЭ мобильной компрессорной установки

Исполнитель:
Трубачев Сергей

Выполненные работы по проекту:
  • разработка проекта
  • монтаж, пусконаладка
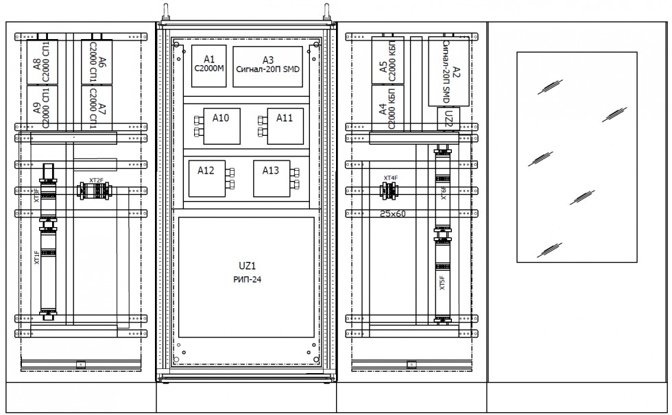
Разработка конструкторской документации шкафа пожарной автоматики для системы газового пожаротушения. Разработка конфигураций и наладка ШПА.
Адрес объекта: Россия, Ямало-Ненецкий АО, г Ноябрьск

Тип объекта: Объект нефте, газодобычи, разработки полезных ископаемых (буровые, шахты, компрессорные)

Был разработан шкаф пожарной автоматики для системы газового пожаротушения. Алгоритмы пожаротушения реализованы на связке Сигнал-20П SMD, С2000-КПБ, С2000М с применением сценариев управления.

Для реализации проекта была использована следующая продукция

Пожарная сигнализация
АРМ
шт.
Сетевой контроллер
шт.
Прибор
шт.
Извещатель
шт.
Повторитель, преобразователь интерфейса
шт.
Прочее
шт.
1
1
2
4
2
Итого:
1
9

Установки пожаротушения
АРМ
шт.
Сетевой контроллер
шт.
Прибор
шт.
Извещатель
шт.
Повторитель, преобразователь интерфейса
шт.
Прочее
шт.
1
1
2
4
2
Итого:
1
9

Оповещение о пожаре
АРМ
шт.
Сетевой контроллер
шт.
Прибор
шт.
Извещатель
шт.
Повторитель, преобразователь интерфейса
шт.
Прочее
шт.
1
2
4
2
1
Итого:
1
9

Охранная сигнализация
АРМ
шт.
Сетевой контроллер
шт.
Прибор
шт.
Извещатель
шт.
Повторитель, преобразователь интерфейса
шт.
Прочее
шт.
1
2
4
2
1
Итого:
1
9