РАБОЧАЯ ДОКУМЕНТАЦИЯ
Система пожарной сигнализации
Система оповещения и управления эвакуацией
Адрес объекта: Россия, г Санкт-Петербург, ул. Карпатская, 14, корп.6, лит. А.
Тип объекта: Промышленный объект (Заводы, фабрики, предприятия)
1. Общая часть
Исходными данными послужили:
- Чертежи архитектурно-строительные;
- Техническое задание.
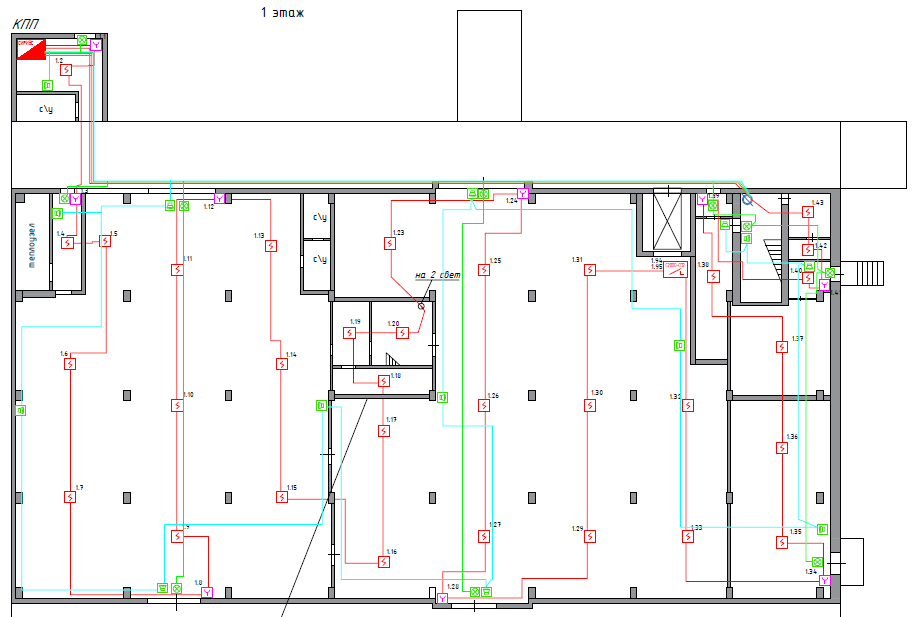
2. Краткая характеристика объекта
Объект – Складские помещения по адресу: 192289, г. Санкт-Петербург, ул. Карпатская, 14, корп.6,
лит. А.
Класс по функциональной пожарной опасности защищаемых зданий – Ф5.1, Ф5.2.
Категория электроснабжения объекта – III
Для реализации проекта была использована следующая продукция
| Пожарная сигнализация |
|---|
АРМ шт. | Сетевой контроллер шт. | Прибор шт. | Извещатель шт. | Повторитель, преобразователь интерфейса шт. | Прочее шт. |
|---|
| 1 | 1 1 | 19 147 | | |
| Итого: | 1 | 2 | 166 | | |
| Оповещение о пожаре |
|---|
АРМ шт. | Сетевой контроллер шт. | Прибор шт. | Извещатель шт. | Повторитель, преобразователь интерфейса шт. | Прочее шт. |
|---|
| 1 | | | | |
| Итого: | 1 | | | | |