Проекты и решенияВнедренные проектыРазработка проектной документации по монтажу АУПТ и СОУЭ Буровая бригада № 25 ТОП «Верхняя Кама»
Рекомендации по построению систем пожарной автоматики в соответствии с СП 484.1311500.2020 изм.1
Автоматизация проектирования BolidCAD
Оборудование Болид в Едином реестре российской радиоэлектронной продукции
Приглашаем принять участие в опросе

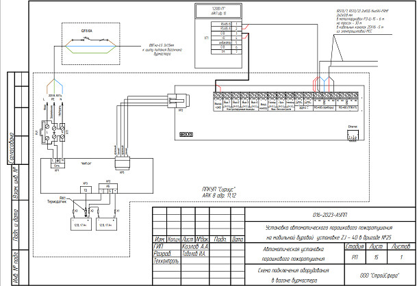
Разработка проектной документации по монтажу АУПТ и СОУЭ Буровая бригада № 25 ТОП «Верхняя Кама»

Разработка проектной документации по монтажу АУПТ и СОУЭ Буровая бригада № 25 ТОП «Верхняя Кама»

Исполнитель:
ООО"СтройСфера"

Выполненные работы по проекту:
  • разработка проекта
Разработка проектной документации на АПС и СОУЭ
Адрес объекта: Россия, Пермский край, г Добрянка, Бригада № 25 ТОП Верхняя Кама

Тип объекта: Промышленный объект (Заводы, фабрики, предприятия)

Для реализации проекта была использована следующая продукция

Установки пожаротушения
АРМ
шт.
Сетевой контроллер
шт.
Прибор
шт.
Извещатель
шт.
Повторитель, преобразователь интерфейса
шт.
Прочее
шт.
1
4
5
1
2
Итого:
1
10
2