Исполнитель:
ТОО "Пожарно-технический центр "Пождитекс"
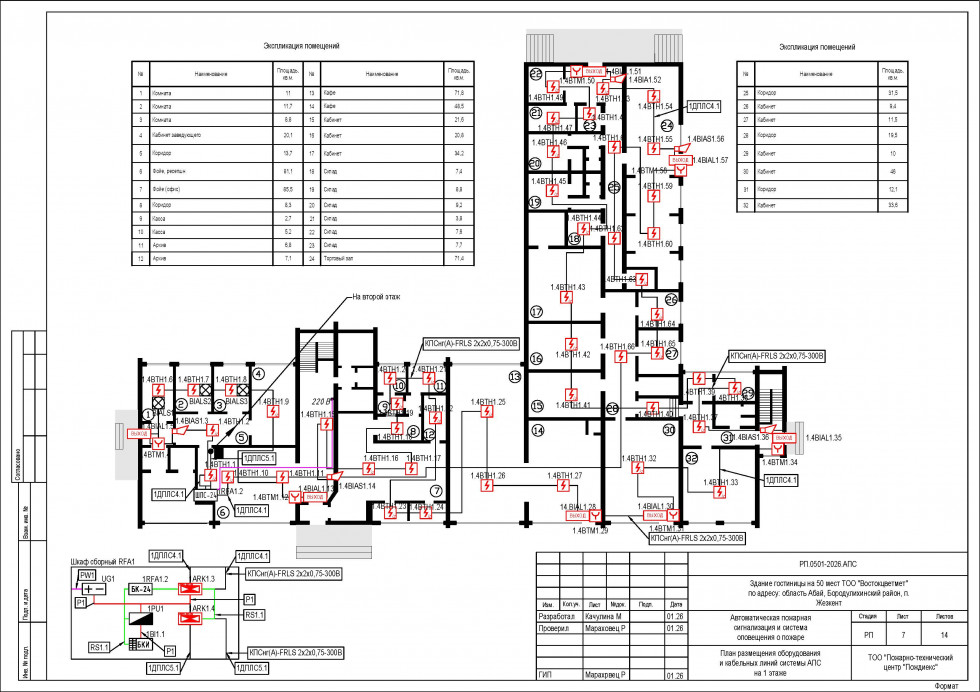
| Пожарная сигнализация | |||||
|---|---|---|---|---|---|
АРМ шт. | Сетевой контроллер шт. | Прибор шт. | Извещатель шт. | Повторитель, преобразователь интерфейса шт. | Прочее шт. |
1 | 1 2 1 | 43 10 44 | |||
| Итого: | 1 | 4 | 97 | ||
| Оповещение о пожаре | |||||
|---|---|---|---|---|---|
АРМ шт. | Сетевой контроллер шт. | Прибор шт. | Извещатель шт. | Повторитель, преобразователь интерфейса шт. | Прочее шт. |
1 | 1 1 | 9 6 | |||
| Итого: | 1 | 2 | 15 | ||