Разработка рабочей документации автоматической установки газовой системы пожаротушения. Монтажные и пусконаладочные работы. Проведение испытаний.
Исполнитель:Торговый Центр Атырау Пожарная сигнализация на основе приборов Болид
Исполнитель:Общежитье компании Казпако в месторождении Прорва
Исполнитель:Обеспечение ОПС к нормативу на объектах БТС (ЦТП, БТП) в г. Березники Пермского края под ключ ЦТП-27, по адресу г. Березники, ул. Набережная, 21А
Исполнитель:Обеспечение ОПС к нормативу на объектах БТС (ЦТП, БТП) в г. Березники Пермского края под ключ ЦТП-28, по адресу г. Березники, ул. Свердлова, 170А
Исполнитель:ЗАВОДСКИЕ УСЛОВИЯ - ПРОМЫШЛЕННАЯ ПЛОЩАДКА ФИЛИАЛА "АЗОТ" АО "ОХК "УРАЛХИМ" В Г. БЕРЕЗНИКИ ПЕРМСКОГО КРАЯ.
Исполнитель:ЗАВОДСКИЕ УСЛОВИЯ - ПРОМЫШЛЕННАЯ ПЛОЩАДКА ФИЛИАЛА "АЗОТ" АО "ОХК "УРАЛХИМ" В Г.БЕРЕЗНИКИ ПЕРМСКОГО КРАЯ.
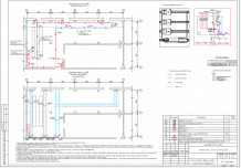
Исполнитель:Монтаж и пусконаладка систем внутреннего пожарного водопровода (ВПВ), автоматики ВПВ, пожарной сигнализации (СПС), оповещения и управления эвакуацией людей при пожаре (СОУЭ) на объекте по адресу: Пермский край, г. Пермь, ул. Солдатова, 31А
Исполнитель:Запущена 2-ая часть большого складского комплекса на базе ППКУП Сириус. Теперь Сириус защищает уже не автономном режиме, а межпанельном. Несмотря на то, что здание отдельное, но некоторые элементы пожарной защиты являются общими
Исполнитель:Монтаж пожарной сигнализации с элементами противопожарной автоматики
Исполнитель:Создание системы охранного телевидения на участках периметра, внутри территории, на всех КПП. С организацией 4х удаленных рабочих мест, распознаванием гос номеров, отображением камер на план. Дооборудование системы охранной сигнализации на требуемых зонах
Исполнитель: